DFWK电缆分接箱
所属分类:电缆分接箱系列
联系电话:0577-61735578
传真:0577-61732776
邮箱:1577927789@qq.com
地址:浙江省温州市乐清市乐清经济开发区滨海南三路28号5栋4楼

DFWK电缆分接箱功能及特点Function and characteristics:
1、采用预制式带电可触摸硅橡胶电缆头,全密封、全绝缘、免维护,可靠保证人身安全;
2、结构紧凑,外形小巧美观,不锈钢双层箱体,使用寿命可达二十年以上;
3、在不影响主网运行的前提下,实现区域停电检修,减小停电范围;
4、可配一台或多台SF6负荷开关。接线方式灵活多样,分支出线可达8回路;
5、可选避雷器、短路故障指示器、限流熔断器等,满足用户各种要求。
DFWK电缆分接箱常用电缆接头 Common cable connector:
采用绝缘橡胶全自动注射而成,内外层均为半导体屏蔽层,内层用来均衡内部电场,外屏蔽层接地保护电缆头表面零电位。应力锥下端内层与电缆的半导体层紧密接触,而外半导体层又与电缆头外半导体层紧密接触,并通过电缆头的接地孔接地,这样不仅解决了电缆外屏蔽层切断处的电场集中问题,而且使电缆外屏蔽层保持零电位,保证人身安全。可触摸电缆前接头直接安装在设备套管上,其后可与可触摸电缆后接头连接,组成多路出线,也可与避雷器连接,为电网提供过电压保护。
DFWK电缆分接箱电维连接剖面图 Electrical dimension connection profile:
1、电缆头安装前,应详细阅读安装说明书,( 附件盒内) ;
2、剥切电缆时,应按附件盒内的电缆制作标示卡进行;
3、压接线端子之前,应先套上应力锥;
4、安装中间接头一定要到位,以保将接线端子固定牢固,否则会因接触不良造成严重后果;
5、只有绝缘塞的端部安装垫片和螺母,其它部位禁装垫片和螺母。
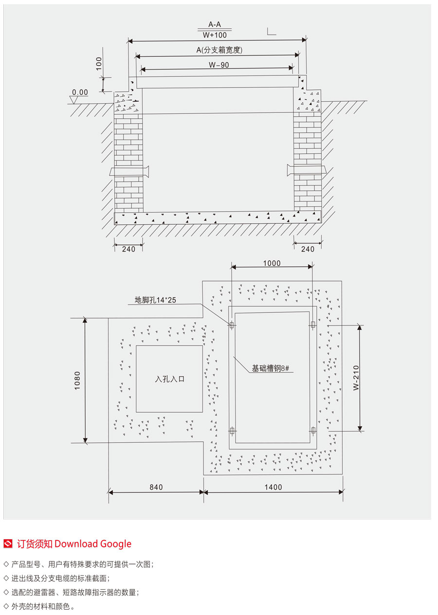
DFWK电缆分接箱技术要求Skills requirement:
1、砖墙内侧采用1:3水泥砂抹封,并做防水处理;
2、穿梁采用砼操作;
3、基础槽钢制作后须做防腐处理;
4、分支箱安装完毕后底座四周用水泥抹封;
5、人孔入口处须采取防水措施;
6、基础内应预埋好接地,接地电阻符合电力部门要求。




COPYRIGHT © 2023 浙江晨亿电气有限公司 ALL RIGHTS RESERVED 技术支持:米点云建站 浙ICP备2022013742号-1